Tour virtuale
Villetta libera sui tre lati in Castiglione Torinese
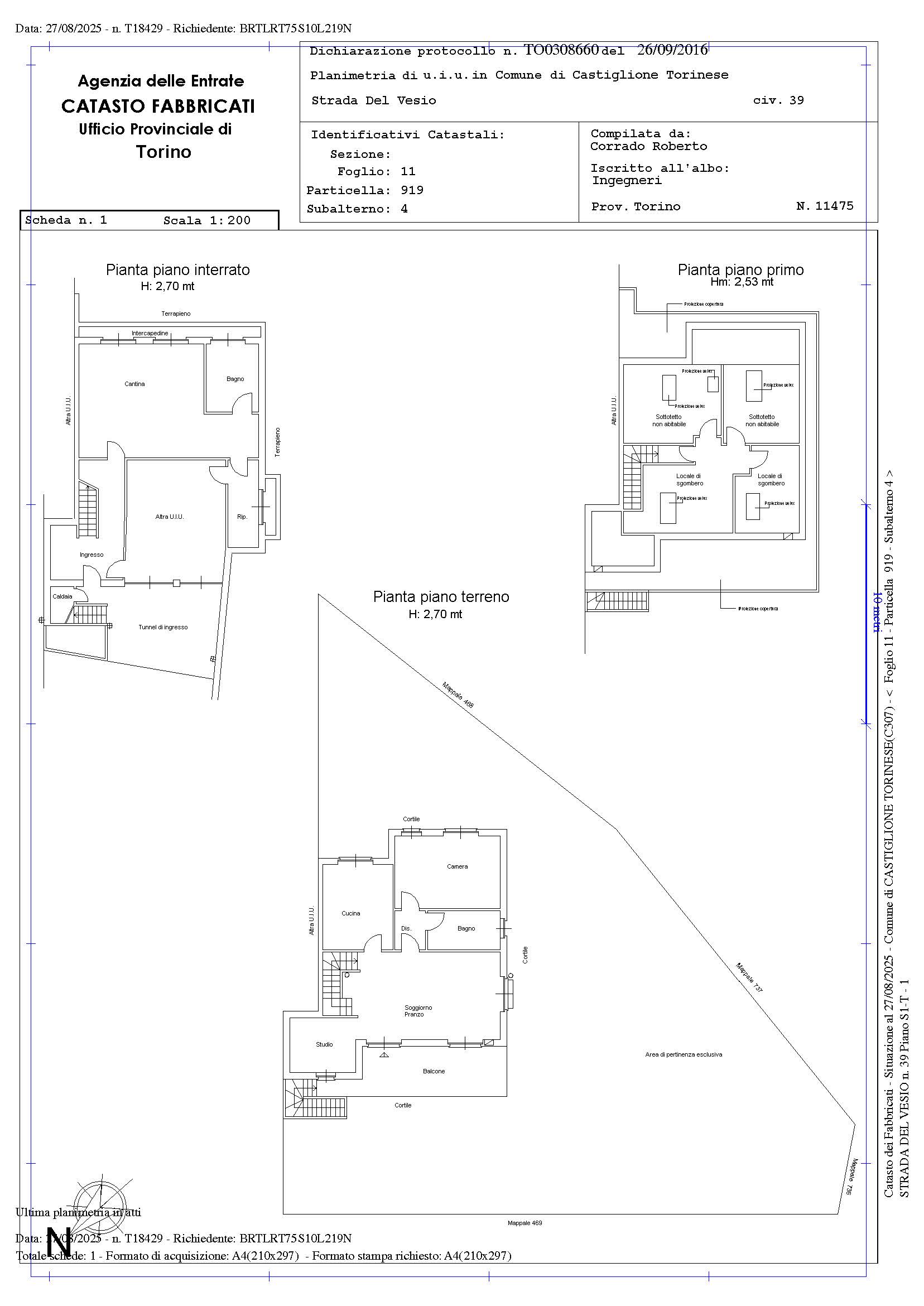
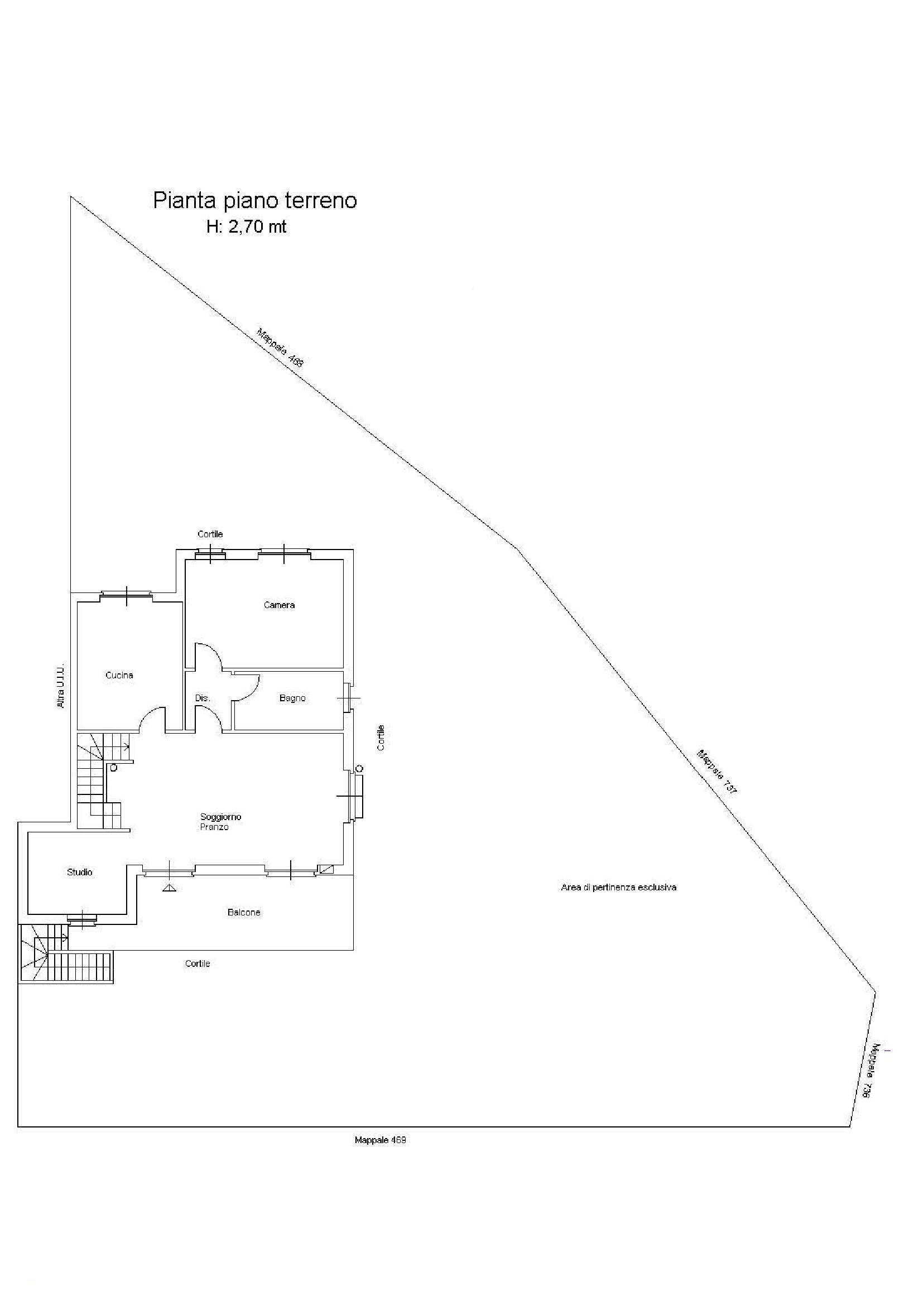
Descrizione
in piccolo complesso residenziale a circa 2 km dal centro di Castiglione Torinese, comune immerso nel verde della collina torinese rinomato per i numerosi percorsi escursionistici e la suggestiva Cascata del Rio Crivella, a circa 20 minuti d’auto dal capoluogo piemontese, villetta a schiera trilivelli circondata da circa 350 mq di giardino.
Circa 150, la proprietà è distribuita su tre livelli con al piano terreno un ampio salone con affaccio su panoramico terrazzo (17 mq), studio, cucina abitabile, una prima camera da letto e servizio, da ogni vano è possibile accedere all’ampio giardino che circonda la proprietà sui tre lati. Una comoda scala interna in legno collega il piano superiore mansardato dove è stato realizzato un area giorno, una luminosa camera da letto, una cameretta ed un ampio servizio. A completamento della proprietà, al piano interrato, al quale si accede sia dal piano superiore sia da un secondo ingresso dotato di portoncino blindato, è presente un’ampia tavernetta con locale lavanderia, una cantina e il box doppio con porta d’ingresso automatizzata.
La proprietà, edificata negli anni ’90 è collocata in complesso residenziale privato costituito da villette di analoga tipologia, si presenta in ottime condizioni interne, tutti gli infissi, i velux, la caldaia a condensazione e l’impianto antifurto, sono stati sostituiti nel 2023.
Soluzione ideale per la famiglia alla ricerca di un più stretto contatto con la natura senza allontanarsi dalla comodità del grande centro urbano.
LA PRESENTE INSERZIONE NON COSTITUISCE NE’ PRESUPPOSTO NE’ ELEMENTO CONTRATTUALE. TUTTE LE INFORMAZIONI RIPORTATE SONO DA CONSIDERARSI INDICATIVE

